














Lieu → Éco quartier des Plaines-du-Loup, pièce urbaine D, Lausanne
Projet et réalisation → 2019 - en cours
Architecte → O. Rochat Architectes sàrl
Responsables du projet → Pedro Monteiro, João Cordeiro
Maître de l’Ouvrage → C-Arts-Ouches, Coopérative des Arts et des Ouches
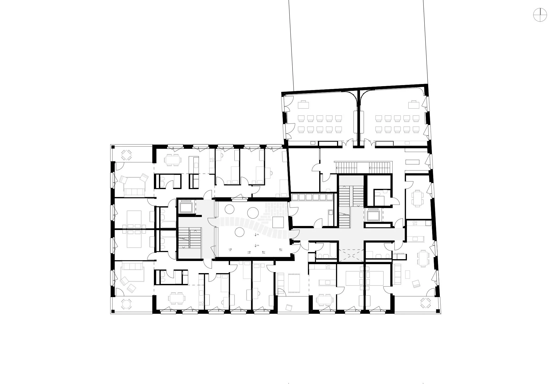
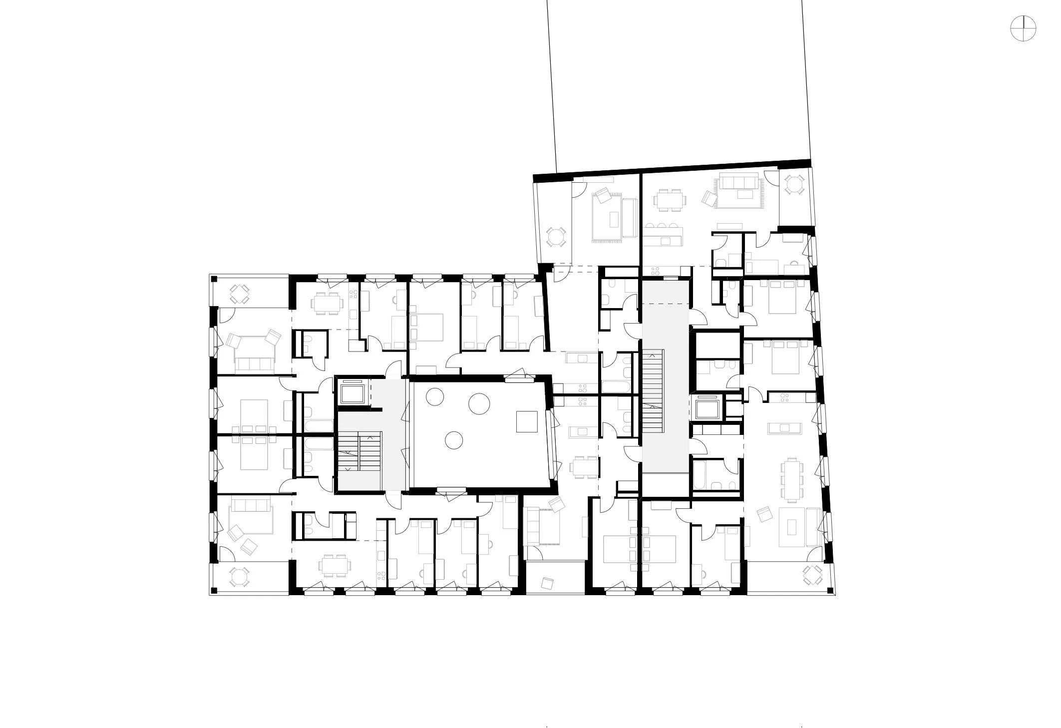
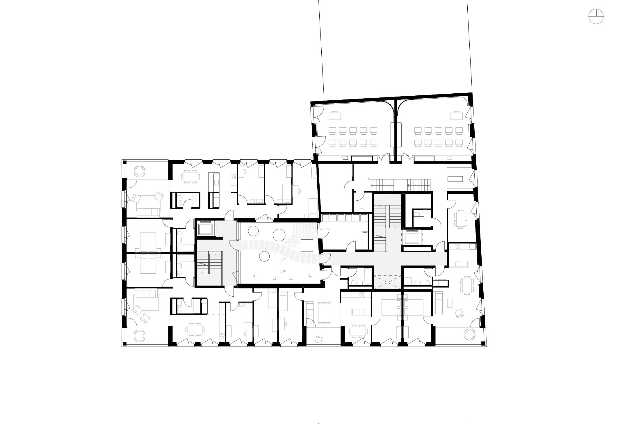
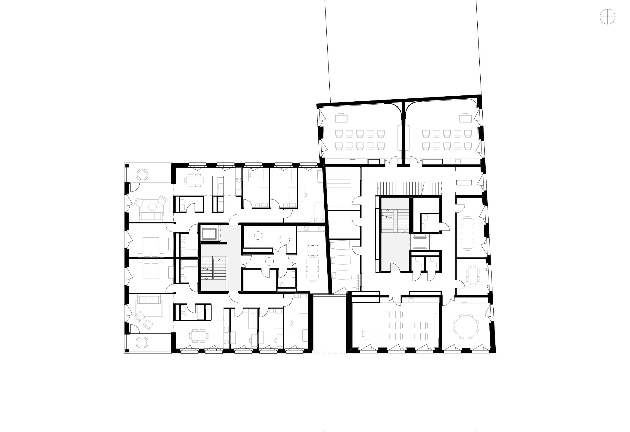
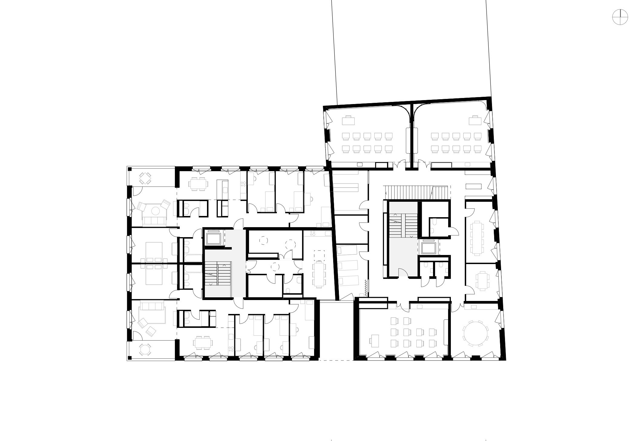
Programme → 35 appartements, une école et une salle polyvalente
Prestations → Complètes selon SIA 102
Budget → 20 MCHF
⨳ C-Arts-Ouches
Coopérative des Arts et des Ouches, l’histoire d’un rêve…
Chers coopérateurs,
La réalisation d’un projet est histoire de patience, parfois d’endurance. On ne peut être architecte sans le savoir. Avec ce projet, j’ai pu voir comme le temps a ses vertus et sait faire naître de belles histoires.
Né de l’envie d’écrire sa vie sans dépendre des autres, le projet a voulu dès le début être ouvert et généreux. En associant aux habitants, moteur de ce projet, l’école spécialisée des Jordils pour des enfants de 6 à 16 ans, un appartement d’accueil de la Fondation Verdeil pour permettre l’envol de jeunes adultes, une salle polyvalente mutualisée, un appartement d’amis, divers locaux de rencontre et de partage d’activités et des ouches communes, tout semble réunis pour son épanouissement… Le processus de création d’un écoquartier de cette ampleur réserve cependant son lot de surprises, de joies et de déceptions, de petites et grandes contrariétés, de petites et grandes victoires. Son histoire en cours est déjà riche de ces événements et toute la beauté de cette aventure est portée par cette envie de partage et de complicité, résultat de la force d’un groupe qui a su transformer les adversités en opportunités. La coopération y prend tout son sens, quand l’intelligence collective permet de savoir rebondir, quand les réponses apportées nous surprennent et nous séduisent, quand savoir se laisser conduire dans des contrées que nous n’imaginions pas nous donne une joie vive, quand l’effort partagé renforce l’amitié.
Chers coopérateurs, ce projet veut être le reflet de vos qualités. Il veut être l’écrin de votre bonheur. Avec sa cour, son jardin suspendu, la diversité de ses lieux de rencontre parfois un peu secrets et la richesse de son programme. Nous espérons avec mon équipe savoir y retranscrire la beauté d’une certaine maturité pour qu’à vos yeux éclose la plus belle fleur du jardin de l’écoquartier des Plaines-du-Loup.
Olivier